![]() | Bejelentkezés |














Ha pénztárcabarát otthont keres és nem tud vagy nem akar albérletet fizetni. Az elszabadult ingatlanárak mellett egy tökéletes befektetés lehet a Gaia Mobilotthon.

Ha teljesen egyedi kialakítású hétvégi házat keres, kemping vagy panzió helyett válassza a Gaia Mobilotthont.

Ha befektetni szeretne. Rendelkezik egy csodaszép telekkel? A Gaia Mobilotthon egy modern, kiadható apartmanként is funkcionál.
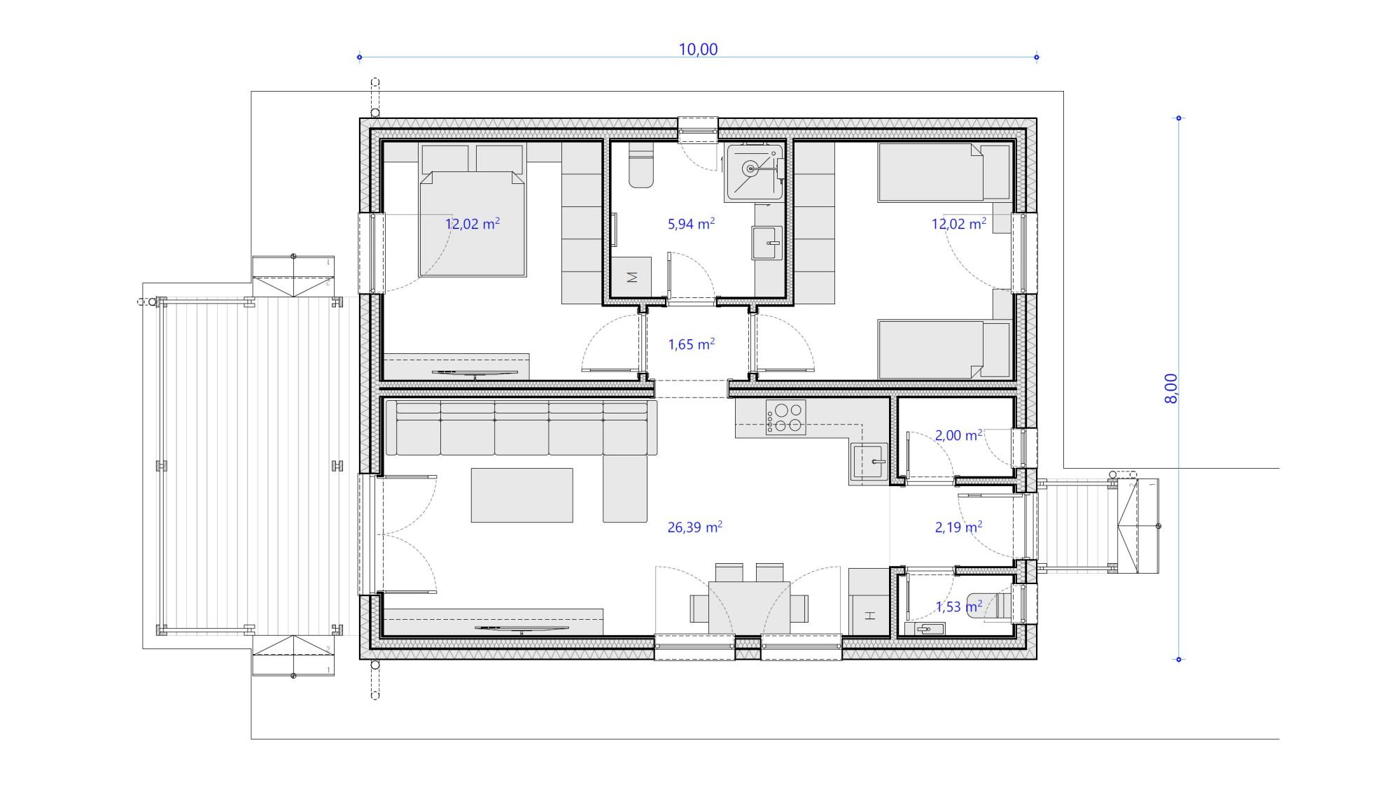
Zafír Kétmodulos Családi Ház (62,57 m²)
⁓ Praktikus, élhető otthon fedett terasszal, rekordidő alatti kivitelezéssel ⁓
Fedezze fel a Gaia Szíve Kft. kétmodulos családi házát, amely tökéletes választás első otthonteremtőknek, kisebb családoknak vagy egy minden igényt kielégítő nyaralónak. A 64,82 m²-es, intelligens elrendezésű otthon Kecskeméten és 40 km-es vonzáskörzetében helyszíni építéssel, távolabb eső településeken szállítással (daruzással és nyerges kamionnal) valósul meg, így a helyszíni munka minimális, a beköltözés pedig rendkívül gyors.
A házban két különálló hálószoba és egy tágas, egyterű közösségi zóna (nappali-konyha-étkező) kapott helyet. A modern, négy évszakos kivitelnek és a már az alapárban is szereplő, 15 m²-es fedett terasznak köszönhetően ez az otthon valódi kényelmet és élhető tereket biztosít az év minden napján.
Innovatív és Környezettudatos Építkezés
A moduláris technológia a 21. század építkezési megoldása: gyors, kiszámítható és környezetbarát. Az épület zárt csarnokban, ellenőrzött körülmények között készül, függetlenül az időjárástól, ami garantálja a precíz kivitelezést és a hulladék minimalizálását. Az elkészült ház fix közműkiállásokkal érkezik, és masszív szerkezetének köszönhetően a telepítés után már nem mozdítható.
A Zafír kétmodulos otthon legfőbb előnyei:
✔ Tágas elrendezés: 64,82 m²-es lakótér 2 hálószobával és világos közösségi térrel.
✔ Fedett terasz az alapárban: Egy 5x3 méteres, faszerkezetű, cserépfedésű terasz is a csomag része.
✔ Gyors és tiszta kivitelezés: Nincs hónapokig tartó építkezés és felfordulás a telkén.
✔ Energiahatékony otthon: Korszerű szigetelési és gépészeti megoldások a gazdaságos fenntartásért.
✔ Egyszerű adminisztráció: Az épület „egyszerű bejelentéssel” építhető.
Prémium Műszaki Tartalom
Alapozás és Szerkezet: Sávalap, minimum 8 cm vastag szerelőbetonnal és talajpára elleni szigeteléssel. A falak könnyűszerkezetesek (A-60/2021 NMÉ szerint tanúsítva).
Szigetelés és Homlokzat: A falakban 15 cm vastag EPS szigetelés, a födémben 25 cm vastag fagyapot szigetelés biztosítja a komfortot. A homlokzat 1,5 mm-es kapart nemesvakolatot kap.
Tetőfedés: Terrán Renova beton cserépfedés, választhatóan téglavörös vagy antracit színben.
Nyílászárók: Fokozottan hőszigetelt, 6 légkamrás, 3 rétegű üvegezésű, acélbetétes műanyag nyílászárók. A bejárati ajtó 36 mm vastag, praktikus felülvilágítóval.
Fűtés és Hűtés: Modern levegő-levegő hőszivattyú gondoskodik a fűtésről, helyiségenkénti mennyezeti légkezelőkkel.
Gépészet és Villanyszerelés: A melegvizet Ariston Velis Pro EU100 elektromos bojler szolgáltatja. A villamos hálózat rézvezetékekkel és Schneider Asfora szerelvényekkel készül (az ár 40 db szerelvényt és helyiségenként 1 db lámpakiállást tartalmaz).
Árazás és Választható Szolgáltatások
Az otthon alapárát és a részletes műszaki tartalmat személyre szabott árajánlatban biztosítjuk Önnek.
Kérjen tőlünk ajánlatot, hogy megismerje az Ön igényeire szabott, kedvező árat!
Felár ellenében elérhető szolgáltatásaink:
Ház körüli járda kialakítása
Teljes körű telek-tereprendezés
Egyedi konyhabútor tervezése, gyártása és beszerelése
A feltüntetett árak telephelyi átvételre vonatkoznak. Egyedi igényeit és a pótmunka díját minden esetben írásban, előzetesen egyeztetjük.
Tegye Meg Az Első Lépést!
Válassza a Zafír kétmodulos otthont, ami élhető méretet, gyors és tiszta kivitelezést, valamint időtálló, négy évszakos lakhatást kínál!
Kérjen személyre szabott ajánlatot, vagy hívjon minket bizalommal!
GAIA SZÍVE KFT.
📞 Telefon: +36 20 957 5288
✉️ E-mail: info@gaiaszive.hu


Van kérdése?